1414 S Main Street 1404 B, Weatherford, TX

$2,500

Previous Next

1.50

Acres

About 1414 S Main Street 1404 B

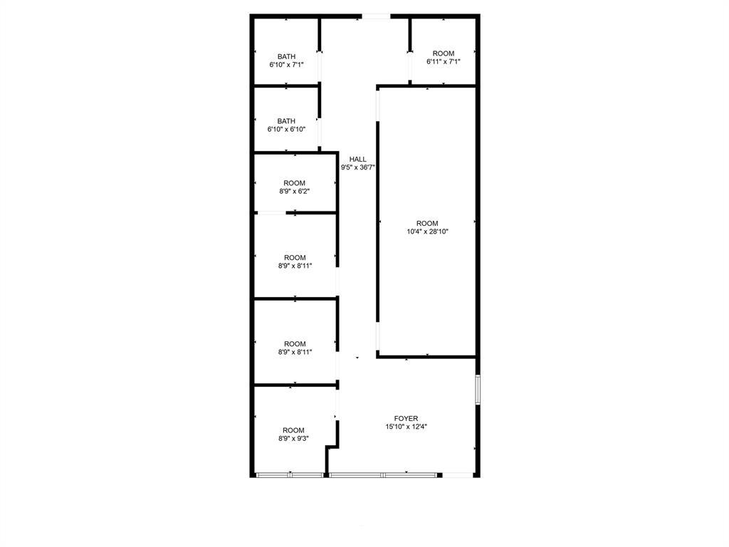
This versatile suite is the only vacancy in a well-located retail strip in Weatherford. The space is currently built out with a welcoming reception area, three private offices, two restrooms, a storage room, and a spacious flex area perfect for a conference room or customizable workspace. Ideal for professional offices, co-working, esthetic services, or a variety of other business uses. Positioned on S Main Street near Weatherford College, just minutes from the historic downtown square, and with convenient access to I-20, this location offers both visibility and accessibility. Benefit from a high-traffic corridor with more than 27,000 cars passing daily. The landlord will be installing new flooring, ensuring the suite is fresh and move-in ready for your business. Triple net lease.

Features of 1414 S Main Street 1404 B

MLS® # 21037294
Price $2,500
Bathrooms 0.00
Acres 1.50
Year Built 1977
Type Commercial Lease
Sub-Type Office
Status Active

Community Information

Address 1414 S Main Street 1404 B
Subdivision PS Hall Surv Abs #659
City Weatherford
County Parker
State TX
Zip Code 76086

Amenities

Utilities City Sewer, City Water
Garages Parking Lot
Is Waterfront No
Has Pool No

Interior

Heating Central, Electric
Fireplace No
# of Stories 1
Stories 1

Exterior

Roof Flat
Construction Brick
Foundation Slab

Additional Information

Zoning Real Commercial

Listing Details

AgentBrandy Johnson
OfficeeXp Realty, LLC
Contact Info888-519-7431

Listing Map

Request a Showing

Provide a valid email address.
When would you like to view this property?